14x40 Glacier Cabin - Livingston, MT

front and side view of a glacier cabin

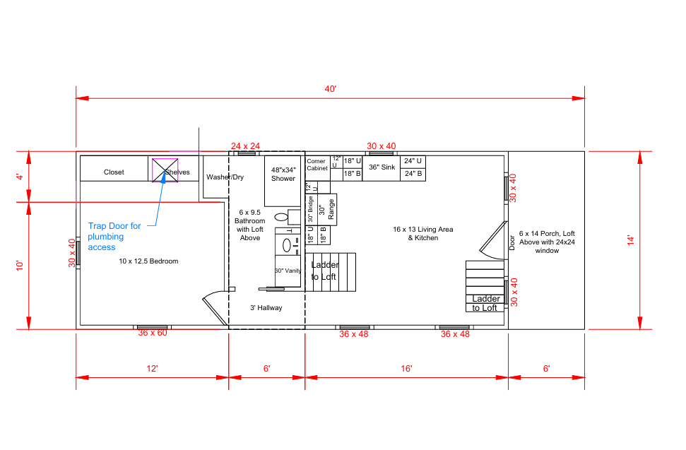
14x40 Glacier Cabin

Check out this thoughtfully crafted 14′ x 40′ sanctuary that honors our client’s desire for independence while keeping him close to the people who matter most. With single-level living, quality Amish craftsmanship, and thoughtful features designed for comfort and connection, this Glacier has transformed family property into a place where independence and togetherness coexist beautifully. 

Project Info

Whether serving as a permanent residence, guest retreat, or multigenerational living solution, this versatile cabin adapts to life’s changing needs while maintaining the dignity and comfort you’ve earned.  

 

Key Features of the 14×40 Glacier Cabin: 

  • Spacious Open-Concept Living Area:  The open concept living area flows naturally into a fully appointed kitchen. The 16′ x 13′ heart of the home invites conversation while providing room to move freely, cook confidently, and live fully.
  • Convenient Floor Plan: The single-level floor plan eliminates the barriers that creep into daily life. No stairs between the bedroom and the kitchen. No steps between comfort and convenience.
  • Covered Porch: Thi s cabin’s covered 6′ x 14′ porch serves as a daily sanctuary for morning coffee, afternoon reading, and evening conversations with family who walk over from the main house.
  • Lofts Above Bedroom and Front Door: The two loft spaces can serve as extra storage, a home office, or a creative space for different owners.
  • Eye-Catching Exterior: The Cedar Canyon tone log siding weathers beautifully on this property, while the Burnished Slate metal roof provides decades of protection.
  • Welcoming Interior: Inside features natural tongue and groove fir floors and warm pine walls to create an atmosphere that feels both substantial and welcoming to family and guests.
  • Rustic Bathroom: The thoughtfully designed bathroom features a walk-in fiberglass shower and oil-rubbed bronze fixtures that combine safety with the rustic style the client loves.
  • Ample Storage Space: The bedroom features built-in shelves for a practical storage solution.
  • Comfort Features: The tankless electric water heater provides endless hot water efficiently. The Comfort Cove electric heating system warms every corner evenly and quietly.

This cabin was purchased as a home for an older gentleman so he could have single-level  living and still be on the same family property There really weren’t any changes from the standard floor plan or any other options that were added to this cabin His granddaughter quickly claimed the loft for her own and filled it with stuffed animals and blankets