Absarokee Log Cabins

Front view of a gray Absarokee Cabin

Craftsmanship Meets Customization

Crafted with timeless Amish precision and designed to bring the essence of rustic charm to your living space. An exquisite piece of Amish craftsmanship that blends rustic charm with modern comforts. This log cabin showcases distinctive design elements, including two large “fake” reverse gables and one above the entry door, creating a captivating and inviting exterior.

 

Inside, you’ll find a well-thought-out layout with a spacious living area, offering plenty of storage space. The kitchen comes complete with beautiful Hickory or Pine cabinets, extensive counter space, and all the necessary plumbing connections. Both bedrooms offer comfort and convenience, with the larger one featuring double barn doors and a spacious closet. The bathroom is well-appointed with a shower, toilet, and elegant vanity. A charming loft adds extra versatility to the space.

 

Welcome to the Absarokee Log Cabin – where craftsmanship meets customization, and your vision becomes a reality.

 

Our cabins are built with the highest quality materials and craftsmanship. The logs are carefully selected and hand-hewn by Amish craftsmen, and the cabins are assembled with precision and care. The results are cabins that are both beautiful and durable.

 

Additional Options Available.

Request Pricing

Product Description

Foundation and Flooring:

  • Supported by robust 4×6 Pressure-Treated Base Skids, ensuring a solid foundation.
  • 2×10 Floor Joists spaced 16” on center and insulated with R-30 insulation, guaranteed energy efficiency and structural integrity.
  • The ¾” Tongue & Groove OSB Sub Floor provides a stable and reliable base for your cabin.
  • Enjoy the luxurious feel of COREtec Pro Classics Waterproof Clip-n-Lock Luxury Vinyl Plank Flooring, with optional Vinyl Sheet or Clip-n-Lock LVP Flooring for bathrooms.

Walls and Roofing:

  • Featuring 2×6 Exterior Wall Framing with R-21 Insulation, your cabin is built for energy efficiency and resilience.
  • 4×4 Douglas Fir Exposed Rafters, spaced 4’ on center, offer a charming and durable structural element.
  • The unique Sunburst Truss Design is implemented every 8’ – 12’ of living space, adding character and strength.
  • The interior boasts 1×6 Knotty Pine Tongue & Groove on the ceiling above rafters and on interior walls, creating a warm and inviting atmosphere.
  • 2×8 Rafters, spaced 2’ on center, are insulated with R-38 Foam Insulation for optimal temperature control.
  • All interior wood is sealed with a Latex-Based Clear Finish for a pristine and timeless look.
  • A 7/16” OSB layer under the siding on all sides provides additional protection.
  • A House Wrap Moisture Barrier is installed under all siding types to safeguard your cabin against the elements.
  • The roof features 7/16” OSB on top of 2×8 Rafters, Synthetic roofing underlayment, and a durable 40-Year Painted Steel Roof to ensure longevity.

Doors and Windows:

  • An Insulated Full Lite ThermaTru Door with Internal Blinds offers style and privacy.
  • PlyGem 200 Series Windows are equipped with Low-E 180 Glass and Argon Gas insulation for energy efficiency.
  • These windows feature a Clay Color frame and are Single Hung (No Grids), maintaining a clean and attractive look.

Loft and Porch:

  • The Douglas Fir 2×6 Tongue & Groove Loft Floor provides a charming and sturdy upper level.
  • Enjoy a loft with Log Railings and a ladder, with hardware included for easy access.
  • Step outside to a Porch with Treated Wood Decking, Log Posts, and Railing (on applicable cabins), providing an inviting outdoor space to relax and enjoy the surroundings.

Contact Us

Project Location(Required)

Features

Spacious Living Area

A generous and welcoming space that offers flexibility for your furnishings, complete with outlets, switches, and light boxes designed for your convenience. These features are compatible with both lighting and fan installations, allowing you to create the perfect atmosphere for relaxation.

Kitchen with Ample Storage

The kitchen is a culinary haven, furnished with beautiful Hickory or Pine cabinets that include 8 ½ feet of base cabinets, a 2-foot pantry, and 5 ½ feet of wall cabinets, along with a bridge cabinet over the range area. A laminate countertop, a choice of a single or double basin sink with faucet, and comprehensive plumbing are all thoughtfully included. The kitchen is pre-wired for essential appliances, such as a refrigerator, range, microwave, and above-counter outlets, as well as featuring a dedicated light box above the sink.

Elegant Bedrooms

The primary bedroom exudes sophistication with its cathedral ceiling and comes with a closet and shelves for organized storage. Double barn doors provide easy access. An adjacent small bedroom near the bathroom offers versatility. Safety and convenience are a priority, with smoke detectors, outlets, and light boxes compatible with fan/light fixtures or wall-mounted lights.

Sleek Bathroom with Modern Amenities

The bathroom is a combination of style and functionality, featuring a shower, toilet, and a sophisticated Hickory or Pine vanity with a solid surface top. High-quality fixtures complete the look. For your comfort, an electric tankless water heater ensures a constant supply of hot water. A vent fan and ceiling light enhance ventilation, while an additional outlet and a light box are thoughtfully placed at the vanity. Washer/dryer hookups add a layer of convenience, and a small window infuses the space with natural light.

Versatile Loft Space

The loft, positioned above the small bedroom, bathroom, and hallway, offers extra space and versatility. Access is made easy with a standard ladder, ensuring that every corner of the cabin is usable and functional.

Customizable Electric Options

The cabin is wired to meet standard electrical code requirements, including electric heating. You have the flexibility to choose from three available electric heating options, allowing you to tailor the heating system to your specific preferences.

Thoughtful Storage

With built-in shelves throughout the cabin, you'll have plenty of room to display your cherished belongings and keep your essentials neatly organized. Maximizing the use of space without compromising on style.

Floor Plans

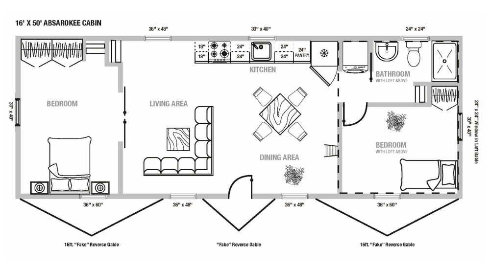
16x50 Absarokee log cabin floorplan
Available in 24 sizes from 14x44 to 16x50

Catalogs

Cover of the 2024 Montana and Wyoming Cabin Catalog

Montana & Wyoming

DOWNLOAD
Cover of the Idaho Cabin Catalog

Idaho

DOWNLOAD

Product Options

Interior Styling
Kitchen Options
HVAC & Plumbing
Additional Storage
Gables & Windows
Doors
Porches & Decks
Close up of engineered hickory flooring in a cabin
Engineered Hickory Flooring
Close up of Fir Tongue and Groove Flooring in a cabin
Fir Tongue & Groove Flooring
Bathroom with steel wainscot and wood walls
Steel Wainscot
Cabin interior with vertical stained tongue and groove wainscot
Vertical Stained Tongue & Groove Wainscot
Close up of a cabin ceiling with stained beams
Stained Beams & Trim
Close up of a cabin ceiling with puck lights
Puck Lights
A cabin kitchen with a bar top and cabinets
Kitchen Bar Top
A cabin kitchen's peninsula with cabinets
Kitchen Peninsula
A cabin's kitchen with a pantry
Pantry
Close up of a dishwasher cabinet opening in a cabin
Dishwasher Cabinet
Close up of a stainless steel farmhouse sink in a kitchen
Stainless Steel Farmhouse Sink
Close up of a kitchen range hood with a vent
Range Hood with Vent
Cabin interior with a close up of an opening for AC and an outlet.
AC Opening & Electric Only
Close up of a cabin AC unit
AC Unit
Close up of a brown and black wood ceiling fan in an cabin
Ceiling Fan
Close up of a chimney kit for inside a cabin
Chimney Kit Interior
Close up of a propane tankless water heater in a cabin
Propane Tankless Water Heater
Cabin washer and dryer hookup
Washer & Dryer Hookups
Close up of a double vanity sink
Double Vanity
Interior of a cabin with a loft and ladder
Interior Loft
Close up of the inside of a pine closet in a cabin with shelving and a light
Pine Closet
Cabin interior with a pull down ladder leading to the attic
Pull-Down Attic Ladder
Wooden stairs with built in drawers
Stairs with Drawers
Close up of wood shelves in a cabin
Wood Shelves
Close up of a cabin's fake reverse gable
Fake Reverse Gable
An exterior view of a cabin with a functional reverse gable
Functional Reverse Gable
Front and side exterior view of a cabin with an open gable with sunburst truss
Open Gable with Sunburst Truss Design
Cabin exterior with a gable and trapezoid windows
Trapezoid Windows in Gable
A picture window on a cabin with single hung windows on either sides
Picture Window with Single Hung on Each Side
Exterior view of a cabin with a shed dormer
Shed Dormer
Cabin interior doorway with open double barn doors
Double Barn Doors
Close up of French Doors on a cabin's exterior
French Doors
Close up of a single barn door in a cabin
Single Barn Door
Close up of a wood screen door on a cabin
Wood Screen Door
Exterior of a cabin with a detached a-frame porch
Detached A-Frame Porch
Close up of a cabin's inset front porch
Inset Porch
Cabin with a side porch and roof
Side Porch with Roof
Close up of a cabin entrance with a side deck
Side Deck
Front exterior view of a cabin with a loft over its porch
Loft Over Porch

Contact Us Today

Ready to embark on your cabin journey? Contact our friendly team today for more information, personalized assistance, or to request our comprehensive cabin catalog. We are here to guide you every step of the way, from selecting the perfect cabin to bringing your vision to life. Join our community of satisfied customers and start building memories in your very own modular log cabin.