Yellowstone Log Cabins

Front exterior of a Yellowstone Log Cabin

Where Lifestyle Takes Center Stage

The Yellowstone Log Cabin stands out with its large functional reverse gable and strategically placed 10’ shed dormer, creating a visually appealing exterior. The loft, nestled between these design elements, adds character and extra space to the cabin.

 

Inside, you’ll find a spacious living area wired with outlets, switches, and light boxes compatible with a light and fan. The kitchen, a hub of practicality, boasts beautiful Hickory or Pine cabinets with ample storage space. A laminate countertop, single or double basin sink with faucet, and all plumbing included make this kitchen a functional delight, wired for essential appliances.

 

The bedroom, complete with cathedral ceilings, a small closet, and two windows, provides a cozy haven. The bathroom offers a shower or tub/shower combo, toilet, Hickory or Pine vanity with a solid surface top, and fixtures. An electric tankless water heater, exhaust fan & ceiling light, outlet & lightbox with the vanity, and washer/dryer hookups ensure convenience. A small window adds a touch of natural light.

 

The loft, strategically located over the bath & entry, comes with a stairway for easy access. The stairs feature drawers for storage, creating an efficient and organized living space. Standard electric to code, including electric heat with customizable options, completes the package.

 

The Yellowstone Log Cabin invites you to personalize your living experience. Whether you’re enjoying the 6’ porch with treated wood decking, log posts, and railing or optimizing the loft for additional storage, this cabin will match your unique lifestyle. Welcome to your Yellowstone retreat—a place where your lifestyle takes center stage.

Our cabins are built with the highest quality materials and craftsmanship. The logs are carefully selected and hand-hewn by Amish craftsmen, and the cabins are assembled with precision and care. The results are cabins that are both beautiful and durable.

 

Additional Options Available.

Request Pricing

Product Description

Foundation and Flooring:

  • Supported by robust 4×6 Pressure-Treated Base Skids, ensuring a solid foundation.
  • 2×10 Floor Joists, thoughtfully spaced 16” on center, boast R-30 insulation for guaranteed energy efficiency and structural integrity.
  • A stable and reliable base is provided by the ¾” Tongue & Groove OSB Sub Floor.
  • Luxuriate in the feel of COREtec Pro Classics Waterproof Clip-n-Lock Luxury Vinyl Plank Flooring, with optional Vinyl Sheet or Clip-n-Lock LVP Flooring for bathrooms.

Walls and Roofing:

  • Engineered with 2×6 Exterior Wall Framing featuring R-21 Insulation, ensuring energy efficiency and resilience.
  • Charming 4×4 Douglas Fir Exposed Rafters, spaced 4’ on center, add both character and durability.
  • A unique Sunburst Truss Design implemented every 8’ – 12’ of living space, adds character and strength.
  • The interior exudes warmth with 1×6 Knotty Pine Tongue & Groove on the ceiling above the rafters and on interior walls.
  • 2×8 Rafters, spaced 2’ on center, are insulated with R-38 Foam Insulation for optimal temperature control.
  • All interior wood is sealed with a Latex-Based Clear Finish for a pristine and timeless look.
  • Additional protection is provided by a 7/16” OSB layer under the siding on all sides.
  • Safeguard your cabin against the elements with a House Wrap Moisture Barrier installed under all siding types.
  • The roof boasts 7/16” OSB on top of 2×8 Rafters, Synthetic roofing underlayment, and a durable 40-year Painted Steel Roof for longevity.

Doors and Windows:

  • Style and privacy meet with an Insulated Full Lite ThermaTru Door with Internal Blinds.
  • PlyGem 200 Series Windows, equipped with Low-E 180 Glass and Argon Gas insulation, ensure energy efficiency.
  • These windows, featuring a Clay Color frame, are single-hung (No Grids), maintaining a clean and attractive look.

Loft and Porch:

  • The charming and sturdy upper level is provided by the Douglas Fir 2×6 Tongue & Groove Loft Floor.
  • Enjoy easy access with a loft featuring Log Railings and a ladder, complete with included hardware.
  • Step outside to a welcoming Porch with Treated Wood Decking, Log Posts, and Railing (on applicable cabins), creating an inviting outdoor space to relax and enjoy the surroundings.

Contact Us

* indicates required

Features

Spacious Living Area

Indulge in an expansive living area designed for comfort and versatility. Wired with outlets, switches, and light box compatibility, this space is ready for your personal touch, whether you prefer ambient lighting or the addition of a fan.

Functional Kitchen Layout

The kitchen boasts beautiful Hickory or Pine cabinets, featuring 11 ½ ’ of base cabinets, including a Lazy Susan, and 6 ½ ’ of wall cabinets. Additional highlights include a corner cabinet and bridge cabinet, providing ample storage. A laminate countertop and a single or double basin sink with a faucet, along with comprehensive plumbing, offer convenience. The kitchen is pre-wired for essential appliances such as a refrigerator, range, and microwave. Above-counter outlets and a dedicated light above the sink add to the practicality of this culinary haven.

Comfortable Bedroom Package

Experience comfort in the bedroom package, complete with a cathedral ceiling, a small closet, and two windows that infuse the space with natural light. Safety features include a smoke detector, strategically placed outlets, and a lightbox compatible with a fan/light, all controlled by a convenient switch.

Efficient Bathroom Design

The bathroom is designed for efficiency and modern comfort, offering a choice between a shower or a tub/shower combo. Other features include a toilet, a Hickory or Pine vanity with a solid surface top, and fixtures. Modern amenities include an electric tankless water heater, an exhaust fan with a ceiling light, outlets, and a lightbox strategically placed near the vanity. Washer/dryer hookups add a layer of convenience, and a small window enhances the ambiance.

Versatile Loft Space

This cabin includes a thoughtfully designed loft over the bath & entry area, accessible via a stairway with built-in drawers for storage. Additionally, a storage area under the steps with a small door maximizes the use of space.

Customizable Electric Options

Benefit from standard electric wiring to code, inclusive of electric heating. Choose from three available electric heating options, allowing you to tailor the heating system to your specific preferences.

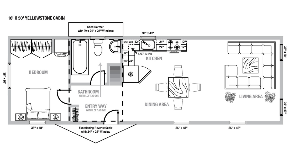
Floor Plans

16x50 Yellowstone log cabin floorplan.
Available in 36 sizes from 14x32 to 16x50

Catalogs

Cover of the 2024 Montana and Wyoming Cabin Catalog

Montana & Wyoming

DOWNLOAD
Cover of the Idaho Cabin Catalog

Idaho

DOWNLOAD

Product Options

Interior Styling
Kitchen Options
HVAC & Plumbing
Additional Storage
Gables & Windows
Doors
Porches & Decks
Close up of engineered hickory flooring in a cabin
Engineered Hickory Flooring
Close up of Fir Tongue and Groove Flooring in a cabin
Fir Tongue & Groove Flooring
Bathroom with steel wainscot and wood walls
Steel Wainscot
Cabin interior with vertical stained tongue and groove wainscot
Vertical Stained Tongue & Groove Wainscot
Close up of a cabin ceiling with stained beams
Stained Beams & Trim
Close up of a cabin ceiling with puck lights
Puck Lights
A cabin kitchen with a bar top and cabinets
Kitchen Bar Top
A cabin kitchen's peninsula with cabinets
Kitchen Peninsula
A cabin's kitchen with a pantry
Pantry
Close up of a dishwasher cabinet opening in a cabin
Dishwasher Cabinet
Close up of a stainless steel farmhouse sink in a kitchen
Stainless Steel Farmhouse Sink
Close up of a kitchen range hood with a vent
Range Hood with Vent
Cabin interior with a close up of an opening for AC and an outlet.
AC Opening & Electric Only
Close up of a cabin AC unit
AC Unit
Close up of a brown and black wood ceiling fan in an cabin
Ceiling Fan
Close up of a chimney kit for inside a cabin
Chimney Kit Interior
Close up of a propane tankless water heater in a cabin
Propane Tankless Water Heater
Cabin washer and dryer hookup
Washer & Dryer Hookups
Close up of a double vanity sink
Double Vanity
Interior of a cabin with a loft and ladder
Interior Loft
Close up of the inside of a pine closet in a cabin with shelving and a light
Pine Closet
Cabin interior with a pull down ladder leading to the attic
Pull-Down Attic Ladder
Wooden stairs with built in drawers
Stairs with Drawers
Close up of wood shelves in a cabin
Wood Shelves
Close up of a cabin's fake reverse gable
Fake Reverse Gable
An exterior view of a cabin with a functional reverse gable
Functional Reverse Gable
Front and side exterior view of a cabin with an open gable with sunburst truss
Open Gable with Sunburst Truss Design
Cabin exterior with a gable and trapezoid windows
Trapezoid Windows in Gable
A picture window on a cabin with single hung windows on either sides
Picture Window with Single Hung on Each Side
Exterior view of a cabin with a shed dormer
Shed Dormer
Cabin interior doorway with open double barn doors
Double Barn Doors
Close up of French Doors on a cabin's exterior
French Doors
Close up of a single barn door in a cabin
Single Barn Door
Close up of a wood screen door on a cabin
Wood Screen Door
Exterior of a cabin with a detached a-frame porch
Detached A-Frame Porch
Close up of a cabin's inset front porch
Inset Porch
Cabin with a side porch and roof
Side Porch with Roof
Close up of a cabin entrance with a side deck
Side Deck
Front exterior view of a cabin with a loft over its porch
Loft Over Porch

Contact Us Today

Ready to embark on your cabin journey? Contact our friendly team today for more information, personalized assistance, or to request our comprehensive cabin catalog. We are here to guide you every step of the way, from selecting the perfect cabin to bringing your vision to life. Join our community of satisfied customers and start building memories in your very own modular log cabin.